云开·全站体育app登录 混凝土搅拌站安装及拆除方案

发布于:25-01-20 播放次数:

场地总体规划

混凝土搅拌站总面积5000平方米,使用2台HZS90搅拌机。本项目混凝土总量78000立方米(其中梁13000立方米),拟建混凝土搅拌站日生产能力(按10小时计算)600立方米kaiyun全站网页版登录,年生产能力22万立方米,可完全满足本项目的具体要求。供应。

其他配套设施:

1、砂石料仓:有砂石料仓6个,总面积1000平方米;墙体高3m,以砖砌为主,下、中、顶为钢筋混凝土环梁。砂石堆高度按2.8m计算。共可储存物资2800立方米,共计4200吨。综合项目部混凝土总量及工期可满足23天左右的混凝土生产储备,高峰期材料储备也可充足至少一周。

2、粉罐:每台搅拌机配备4个100t粉罐,其中水泥2套,粉煤灰2套(具体可根据批准的配合比适当调整)。水泥罐采用C30钢筋混凝土扩大基础。

3、办公区:主要是站长办公室、调度室、称重室、司机休息室等。

4、电力设施:每台搅拌机功率190KW,两台搅拌机合计380KW。正常情况下kaiyun.ccm,一台处于使用状态,另一台处于备用状态。一台设备即可满足现场混凝土供应,考虑与三多东桥共用一台。 500KVA变压器。另外还设置一台500KW发电机作为应急电源。

5、其他:其他设施包括水库、水泵、150t地磅、沉淀池等。

场地设有储水池、沉淀池,与搅拌站同时设计、同时施工、同时投入使用。

设备介绍

HZS90混凝土搅拌站是由骨料、粉料、水、液体外加剂的储存、运输、计量、搅拌系统、气路系统、电气控制系统、除尘系统和钢结构组成的全自动混凝土搅拌成套设备。 ,适合大型商品混凝土生产厂使用。

HZS90混凝土搅拌站工艺流程如下。

混凝土搅拌站施工_混凝土搅拌站建设方案_工程混凝土搅拌站多少钱

工程混凝土搅拌站多少钱_混凝土搅拌站施工_混凝土搅拌站建设方案

搅拌站规划图

安装施工步骤及工艺现场施工

(1)场地地势平坦

现场废物设备清理运出后,用挖掘机人工平整场地,用压路机压实,并根据场地总体规划进行铺设。平整场地中间高,两侧低,北高南低。

混凝土搅拌站施工_混凝土搅拌站建设方案_工程混凝土搅拌站多少钱

(二)基础建设

一个。粉罐基础施工

混凝土搅拌站施工_工程混凝土搅拌站多少钱_混凝土搅拌站建设方案

粉罐基础采用整体浇筑的C30混凝土。一侧4个粉罐基础尺寸为16m×4.26m×1.0m。其中100t粉罐基础平面尺寸为3.26m×3.26m,高度为1.0m。它们放置在顶部和底部。一层网格尺寸为20cm×20cm的钢网采用HRB400φ16钢筋。在基础顶面四个角预埋500mm×500mm×16mm钢板。预埋钢板中间留有直径10cm的孔,以利于预埋钢板下混凝土的振动和压实。粉罐基础采用30cm建筑垃圾+20cmC20混凝土硬化处理,尺寸为16m×4.26m。

工程混凝土搅拌站多少钱_混凝土搅拌站施工_混凝土搅拌站建设方案

基础开挖采用小型挖掘机人工进行,混凝土模板浇筑,机械振动施工。

b.主站房基础施工

主站房基础采用整体浇筑的C30混凝土。两座主站房共有8个墩基。主站房基础为扩大基础。底座由30厘米的建筑垃圾制成。表层浇筑20cm C30混凝土,预埋12根Φ16竖向钢筋。桥墩基础上下两侧铺设一层网格尺寸为20cm×20cm的钢筋网,采用HRB400φ16钢筋。在基础顶面预埋一块500mm×500mm×16mm的钢板,在预埋钢板中间留有直径5cm的孔,以利于预埋钢板下混凝土的振动和压实。基础开挖采用小型挖掘机人工进行,混凝土模板浇筑,机械振动施工。

混凝土搅拌站建设方案_工程混凝土搅拌站多少钱_混凝土搅拌站施工

c.斜带基础施工

斜带基础采用整体浇筑的C20混凝土,布置4排,每排2个,共8个。单个基础平面尺寸为1.8m×0.8m,高0.3m。基础顶面预埋400mm×400mm×16mm钢板。预埋钢板中间留有直径5cm的孔,以利于预埋钢板下混凝土的振动和压实。基础挖掘是用小型挖掘机手动进行的。由于该地区地下水位较高,斜带底部基坑采用20cmC20混凝土封堵,混凝土模板浇筑,机械振捣。

工程混凝土搅拌站多少钱_混凝土搅拌站建设方案_混凝土搅拌站施工

坡带基坑采用C30混凝土整体浇筑,混凝土外侧铺设SBS改性沥青防水卷材进行防水。

工程混凝土搅拌站多少钱_混凝土搅拌站施工_混凝土搅拌站建设方案

d.装料仓基础施工

装载机基础采用C30混凝土条形基础,底座采用30cm建筑垃圾。地基平行排列,一排共10个。单个基础平面尺寸为3.0m×0.9m,高度为1.2m。上下各铺设一层网格尺寸为20cm×20cm的钢筋网,采用HRB400φ16钢筋。基础顶面预埋一块400mm×400mm×16mm的钢板,预埋钢板中间留有直径5cm的孔,以利于预埋钢板下混凝土的振动和压实。基础开挖采用小型挖掘机人工进行,混凝土模板浇筑,机械振动施工。

工程混凝土搅拌站多少钱_混凝土搅拌站施工_混凝土搅拌站建设方案

(3)装货口基坑开挖

装货口基坑长2.9m×长6.9m×宽3.7m,基坑长1.1m×23.2m×宽3.7m。开挖采用机械分级。级配坡度为1:1,基坑深2.9m,除筒仓附近50cm宽的混凝土墙外,其余均采用24cm砖墙砌筑,并在基坑处设置一层20cm厚的C20混凝土圈梁。基坑底部和中部。考虑到这里地质为粉质粘土,水位较高,采用井点进行降水,保证基坑正常开挖。

混凝土搅拌站施工_混凝土搅拌站建设方案_工程混凝土搅拌站多少钱

(4)站内道路建设

场地内道路设置标准为30cm砖渣+20cm C20混凝土。表面混凝土采用垂直模板浇筑和机械振动施工。等混凝土表面的水蒸发后(最后一次抹铁后10~15分钟),用拔毛器增加路面与轮胎的摩擦力。

(5)筒仓建设

搅拌站北端并排设置6个砂石料仓,尺寸为10m×16.6m。筒仓底部采用30cm建筑垃圾+20cmC20混凝土面层硬化,并设置2%的排水坡度。筒仓之间有50cm砂浆砖墙,高2.5m。顶部设置彩钢瓦温室,高度8m。

混凝土搅拌站建设方案_工程混凝土搅拌站多少钱_混凝土搅拌站施工

混凝土搅拌站施工_混凝土搅拌站建设方案_工程混凝土搅拌站多少钱

配料仓顶部应设置单层轻钢结构防雨棚。防雨棚的净空应综合考虑当地砂石运输车自卸斗的高度确定。防雨棚应采用透明顶棚和防渗顶棚的组合,以满足棚内的采光要求。配料仓外墙采用高2.5m的“50”砖墙,间隔6m的砖砌三角墩,抗倾覆。配料仓隔墙采用“50”砖墙砌筑,高2.5m。配料仓混凝土地面设置4%的地面排水坡度,内高外低。隔墙底部及后墙预留排水孔。隔墙间距10m,深度16.6m。

混凝土搅拌站施工_混凝土搅拌站建设方案_工程混凝土搅拌站多少钱

(六)水库建设

在搅拌楼附近的空闲空间设置专门的储水箱。储水量应与搅拌站的连续生产量相结合,且不应小于一个工作台班次所需的量。水库底板采用C25防渗混凝土,厚度30cm。底板下方有10cm C20混凝土垫层。水库墙体采用370毫米厚的砖墙砌筑。水池顶面应高出地面80厘米。池壁采用1:2防渗材料。水泥砂浆抹灰。储水箱应做好防水处理,防止渗水影响搅拌机和粉罐的基础稳定性。

工程混凝土搅拌站多少钱_混凝土搅拌站施工_混凝土搅拌站建设方案

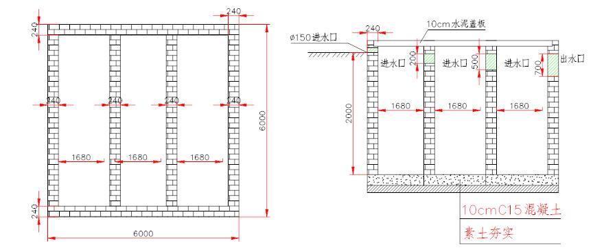
(7)沉淀池建设

本项目混凝土搅拌站三级沉淀池设置在搅拌站大门入口处。三级沉淀池设置为6m×6m×2m。搅拌站废水通过埋地Φ300PVC管道引入沉淀池。沉淀池底部用素土压实,然后浇筑10cmC2 0混凝土,沉淀池壁用240mm砖砌成,抹M10砂浆。沉淀池三级蓄水池通过进水口连接。进水口尺寸有Φ150mm、200×200mm、500×500mm、700×700mm。

混凝土搅拌站施工_工程混凝土搅拌站多少钱_混凝土搅拌站建设方案

工程混凝土搅拌站多少钱_混凝土搅拌站施工_混凝土搅拌站建设方案

工程混凝土搅拌站多少钱_混凝土搅拌站建设方案_混凝土搅拌站施工

(八)排水设施建设

搅拌站外围墙外设置循环排水设施。排水沟为倒梯形砖砌沟。沟深设定为0.8m。沟底宽度0.5m,顶宽1.0m。站内自然排水通过Φ300mm PVC引入围栏。外部排水沟、砂石库前沟、站内道路沟应采用重型盖板或铺设20cm厚钢板。沟渠沿排水方向应有不小于1.5%的坡度,尺寸为30cm×30cm,并应定期清理,保证排水顺畅。

混凝土搅拌站建设方案_工程混凝土搅拌站多少钱_混凝土搅拌站施工

混凝土搅拌站建设方案_混凝土搅拌站施工_工程混凝土搅拌站多少钱

混凝土搅拌站建设方案_混凝土搅拌站施工_工程混凝土搅拌站多少钱

(9)防雷接地

搅拌站粉罐基础采用镀锌扁钢接地,粉罐顶部安装避雷针,确保雷雨天气时设备安全。

混凝土搅拌站建设方案_混凝土搅拌站施工_工程混凝土搅拌站多少钱

搅拌站安装施工

(1)主机架安装

将混合层梁用螺栓和连接板连接成一体,用吊车吊起混合层梁开yun体育app官网网页登录入口,然后旋转180°,使混合层梁下平面朝上。用吊车分别吊起下腿,用螺栓将搅拌层梁连接成整体,将搅拌层梁与地面的四根立柱连接起来,将料斗吊装在搅拌层梁下方,用螺栓将搅拌层梁连接起来。将搅拌层梁整体旋转180°,使立柱朝下,用吊车吊装到基础上,并拧紧地脚螺栓。 (图1)

混凝土搅拌站建设方案_工程混凝土搅拌站多少钱_混凝土搅拌站施工

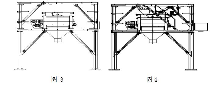
(2)将搅拌机吊装在大梁上,并用螺栓连接牢固。 (图2)

工程混凝土搅拌站多少钱_混凝土搅拌站建设方案_混凝土搅拌站施工

(3)将称重层吊装到位,用螺栓将称重层连接成整体,将称重层与地面上的混合层立柱连接起来,然后旋转180°,使立柱朝下,用吊车吊装并将其固定在混合层梁上。 。 (图3)

工程混凝土搅拌站多少钱_混凝土搅拌站建设方案_混凝土搅拌站施工

(4)用螺栓将门平台与混合层梯子连接牢固,然后将混合层卸料泵、排水管、粉管等附件用螺栓连接牢固。 (图4)

(5)将安装有开门装置的暂存库吊装至计量库,并用螺栓连接牢固。 (图5)

(6) 将泄压管吊入到位,并用螺栓连接牢固。 (图5)

(7)将粉体计量系统和液体计量系统吊装到位,用螺栓连接牢固,各计量斗保持自由状态,不与其他部件干涉。 (图5)

(8)将除尘器吊装到位,并按要求安装。 (图5)

混凝土搅拌站施工_工程混凝土搅拌站多少钱_混凝土搅拌站建设方案

(9)用橡胶套将搅拌机主盖上的水泥计量斗门、粉煤灰计量斗门、集粉斗一体化。注意橡胶套不能拉得太紧,以免影响测量精度。骨料暂存仓开门装置与搅拌机主盖上开门装置接口处连接有工业滤泥。

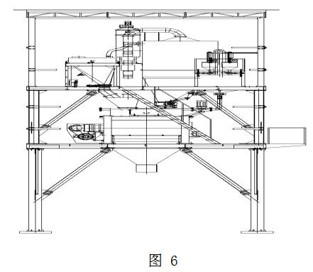
(10)用胶套将出水管与计量斗连接;用波纹管将除尘口、计量斗、暂存仓上盖与除尘器连接;安装屋顶和屋顶支架。 (图6)

混凝土搅拌站建设方案_工程混凝土搅拌站多少钱_混凝土搅拌站施工

倾斜皮带输送机安装

倾斜皮带输送机是环形平面皮带输送机。由于倾斜皮带输送机较长,机架容易变形,机头安装高度较高。如果起重机臂伸出过长,容易发生安全事故。一定要注意起吊的位置和方法。

工程混凝土搅拌站多少钱_混凝土搅拌站施工_混凝土搅拌站建设方案

(1) 将带式输送机各段框架用螺栓固定在一起。 (图7)

(2)将倾斜行走平台与输送架连接成整体,用两台吊车吊装就位,安装支腿,校准后连接地脚螺栓。 (图7)

(3)安装行走平台护栏。 (图7)

(4) 将收集滚筒吊装到位并连接螺栓。 (图7)

(5)安装上、下滚轮组。 (图7)

(6) 安装皮带。 (图7)

(7) 安装主动滚轮、从动滚轮和转向滚轮。 (图7)

(8)安装重物张紧装置。 (图7)

(9)安装瓦撑和瓦板。 (图7)

骨料配料系统安装

(1) 将运输状态下的配料系统吊装到已铺设好的基础上,并用地脚螺栓固定。 (图8)

(2)将上仓吊装到位,固定在框架上。 (图8)

(3)安装传感器,调整计量斗上表面与卸料门之间的距离至合适距离。安装传感器时,严禁对传感器施加扭矩。对于地下仓式配料机,运输铰链应松开,但不要拆除,使其不再承受应力。

混凝土搅拌站建设方案_工程混凝土搅拌站多少钱_混凝土搅拌站施工

混凝土搅拌站建设方案_混凝土搅拌站施工_工程混凝土搅拌站多少钱

手术室安装

(1)操作室与支架连接后,吊装至已铺设的基础上,并用地脚螺栓紧固。 (图9) (2)将下梯子和上梯子安装牢固。 (图9)

工程混凝土搅拌站多少钱_混凝土搅拌站施工_混凝土搅拌站建设方案

粉罐及螺旋输送机安装

(1)将配套粉罐的所有部件在地面上一一组装(安装上下料位计及其电路、除尘器电缆、梯子和栏杆、破拱风管、电磁阀和空气过滤器,并安装水泥进料管、螺旋输送机吊具等),然后将粉罐吊起就位,并拧紧地脚螺栓。 (注:如遇强风,所有粉罐均需配备防风绳)。 (图10)

(2)将螺旋输送机组装在地面上,将进料端挂在粉罐出料口上,将出料口与计量斗进料口对齐,​​拉紧吊绳,安装好螺旋输送机支架,然后连接粉罐的进料口和出料口,并用软胶套连接计量斗的出料口和进料口。注意软胶套不能拉得太紧,以免影响测量精度。 (图11)

工程混凝土搅拌站多少钱_混凝土搅拌站施工_混凝土搅拌站建设方案

混凝土搅拌站建设方案_混凝土搅拌站施工_工程混凝土搅拌站多少钱

管道安装

(1)水路:按要求定位水泵并安装供水管。自建水池时,水池容量不应小于100m3。也可将水泵直接连接到自来水管道上,管道流量不应小于50m3/h。 (图12)

(2)外加剂:安放外加剂储罐,安装外加剂管道。 (图12)

混凝土搅拌站施工_混凝土搅拌站建设方案_工程混凝土搅拌站多少钱

空气系统安装

(1)将空气压缩机和储气罐固定到位。

(2)按图连接空压机、储气罐、气控箱、气瓶等之间的管路。 (图13)

混凝土搅拌站施工_工程混凝土搅拌站多少钱_混凝土搅拌站建设方案

工程混凝土搅拌站多少钱_混凝土搅拌站施工_混凝土搅拌站建设方案